物件情報
居住用 土地








-
所在地
新潟県新潟市東区松崎1丁目788-2
-
物件番号
T102511
- 物件名称
-
価格
1,250万円
-
状態
更地
- 現況
-
引渡時期
相談
-
取引形態
媒介
マーケットシティ河渡まで約850m!
アクセスマップ
-
小学校区
大形小学校 徒歩 約2km
-
最寄駅・バス停
「送信所前」バス停 徒歩 2分
-
中学校区
大形中学校 徒歩 約1.9km
- その他交通
物件詳細情報
権利 | 所有権 | ||
---|---|---|---|
坪単価 | 26万3,435円 | ||
地目 | 宅地 | ||
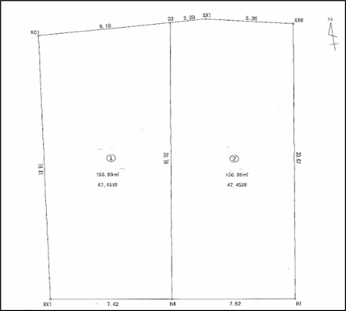
土地面積 | 156.89㎡(47.45坪) | ||
私道負担 | 接道状況 | 現況4.0m(公道) | |
セットバック | 有 (①約2.02㎡) | ||
都市計画 | 市街化区域 | 用途地域 | 第一種 |
建ぺい率 | 60% | 容積率 | 160% |
設備 | ①都市ガス・公営水道・公共下水 ー 各前面道路 ②都市ガス・公共下水ー前面道路、公営水道(引込済) |
備考 | 2区画分譲(分筆後引渡し) ①156.89㎡(47.45坪) 1,250万円 (セットバック)約2.02㎡、間口8.1mー奥行19.8m ②156.89㎡(47.45坪) 1,250万円 (セットバック)約1.88㎡、間口7.5mー奥行20.7m ※建築基準法22条区域 ※航空法高さ制限 約46m |
||
---|---|---|---|
更新日付 | 2025年10月7日 |